
専有面積:86.04㎡
| Place | 神奈川県横浜市 |
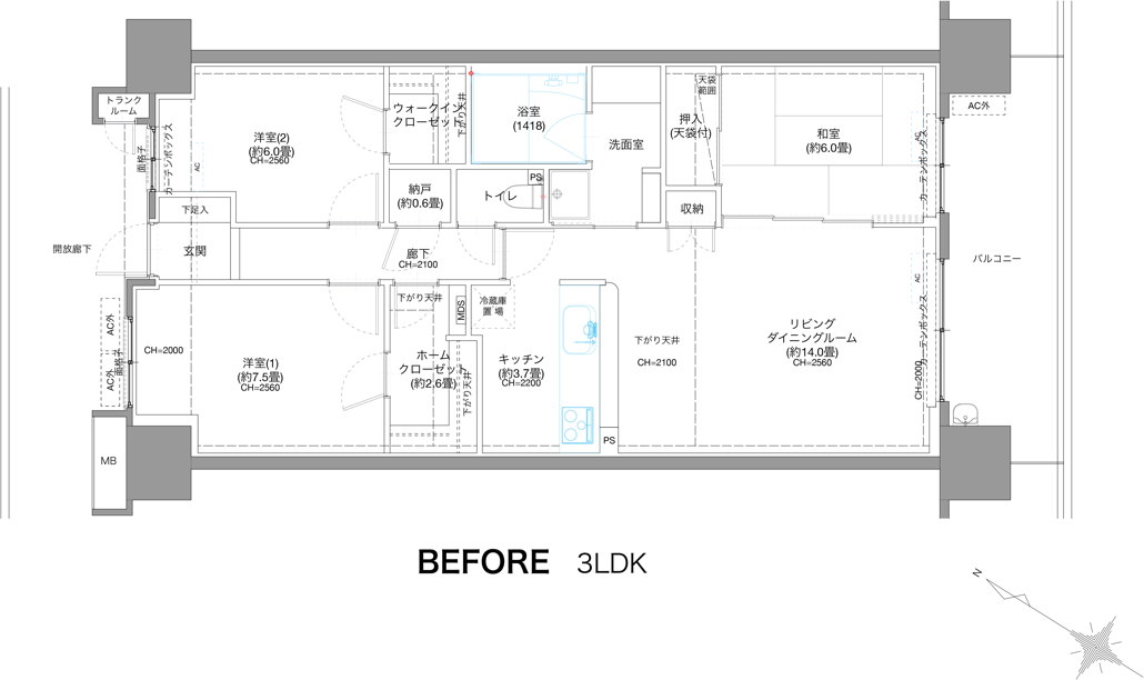
| Comment | マンションのリフォーム計画です。 3LDKの間取りを、3LDK+スタディールーム+ファミリークローゼットにリフォームしました。 キッチンは吊り戸棚をなくし開放的にし、対面カウンターは家族のダイニングテーブルとしても使えます。スタディールームでは子供3人が集中して勉強でるようにし、外からも様子がわかるよう建具にルーバーをつけたり、南側に窓を付けています。 キッチンカウンターには、アアルトのデザインしたペンダント照明ゴールデンベルが、インテリアのポイントとして輝いています。 |









