
構造設計:MAY設計事務所 杉山逸郎|照明デザイン監修:東京デザインパーティー 長根 寛
写真撮影:牧野孝彦|木造2階建
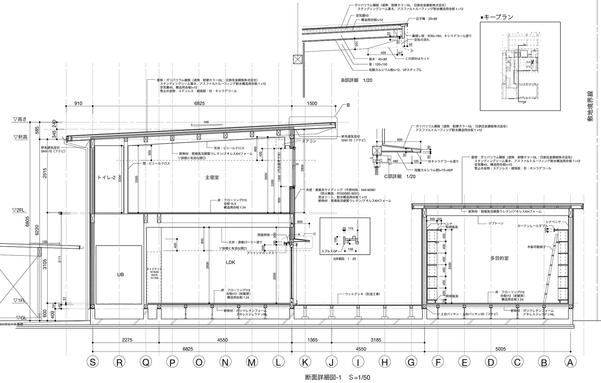
| Place | 埼玉県春日部市 |
| Comment | 開放的な中庭を囲む採光と通風に配慮した住宅です。夏は涼しく冬は暖かいように南側の軒先の出をコントロールして日差しの入り具合を調整します。 また、開口部には3枚ガラスの入った木製サッシを使用し断熱性能にも配慮しました。内部の仕上げは、壁・天井に漆喰、床はフローリングを使い自然素材を活かしたインテリアとなっています。照明計画はいろいろなシーンを想定し、落ち着ける雰囲気となるよう計画しました。 |











