
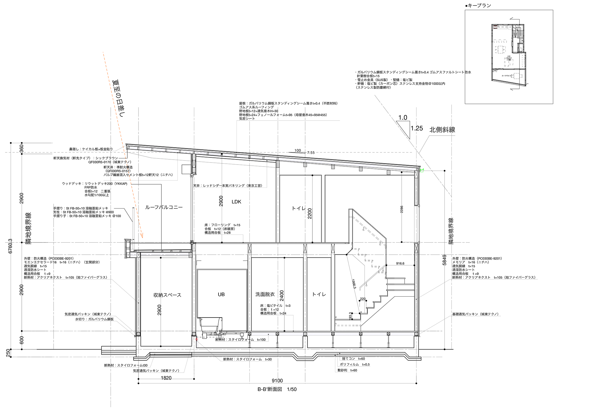
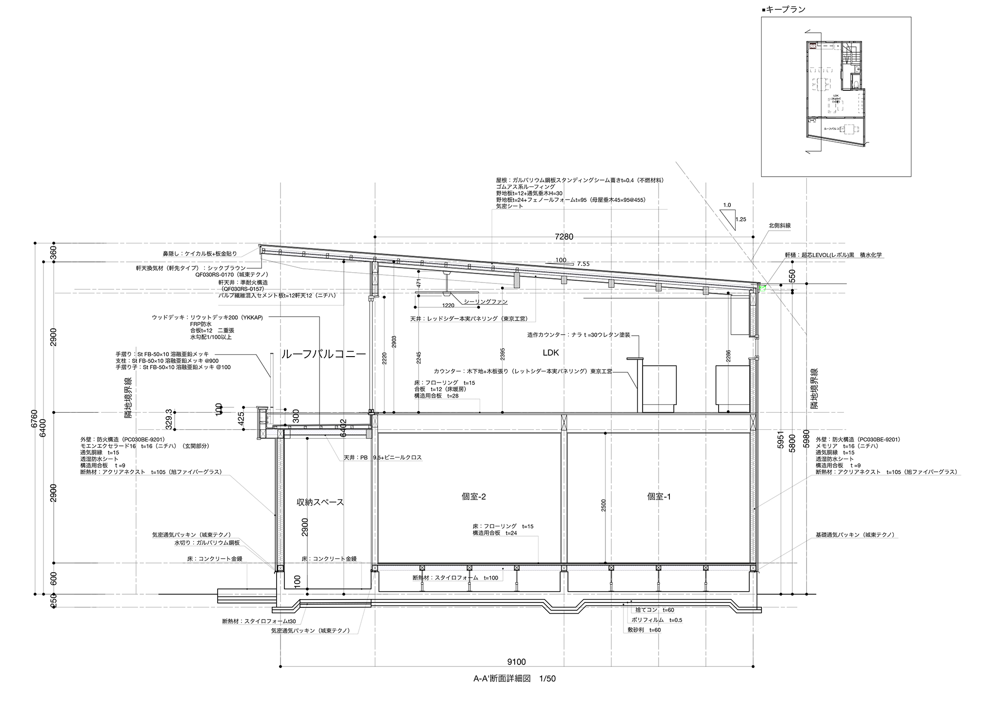
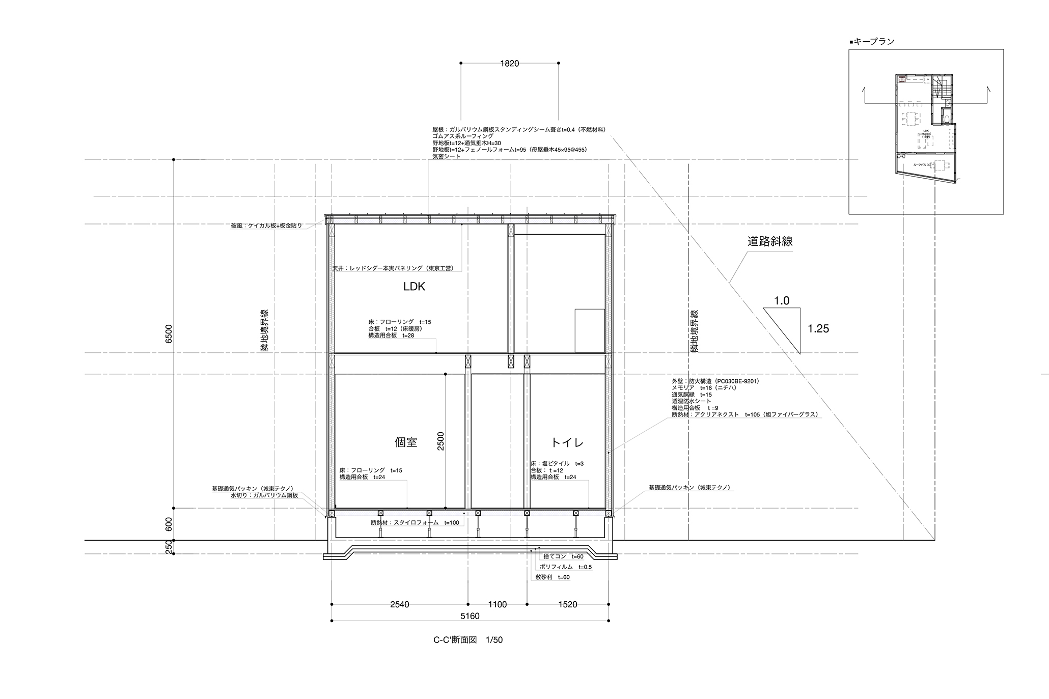
構造設計:MAY設計事務所 杉山逸郎|照明デザイン監修:東京デザインパーティー 長根 寛
写真撮影:牧野孝彦|木造2階建:88.18㎡
| Place | 神奈川県逗子市 |
| Comment | サーフィンが趣味の施主のための家です。2階からは開放的な風景を望むことが出来るように勾配屋根とし、勾配なりに天井が高くなるよう計画しています。 インテリアは天然木を使い間接照明などで暖かみのある落ち着く空間にしました。 2階の広々としたルーフバルコニーはリビングと一体的につながり、屋外のリビングとして利用できます。 1階の玄関土間は、サーフボードをメンテできるスペースを確保し、また、ロングボードが収納出来る天井高を確保しています |
















