
構造設計:MAY設計事務所 杉山逸郎|電気設備設計:設備計画研究所 志賀常雄
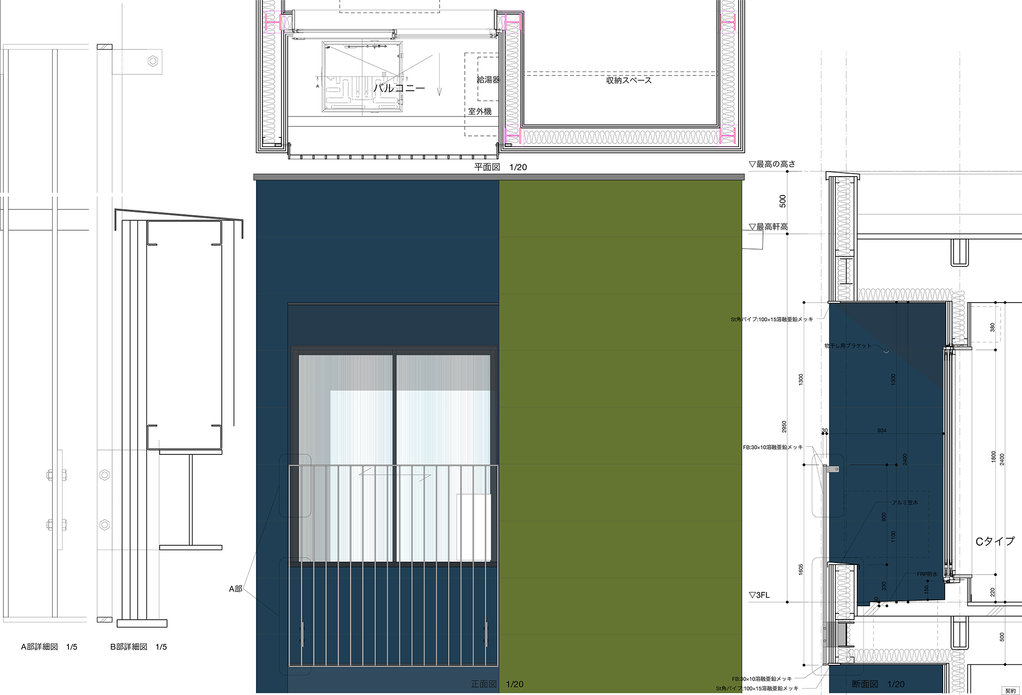
写真撮影:杉本篤哉|鉄骨造3階建:137.14㎡
| Place | 東京都武蔵野市 |
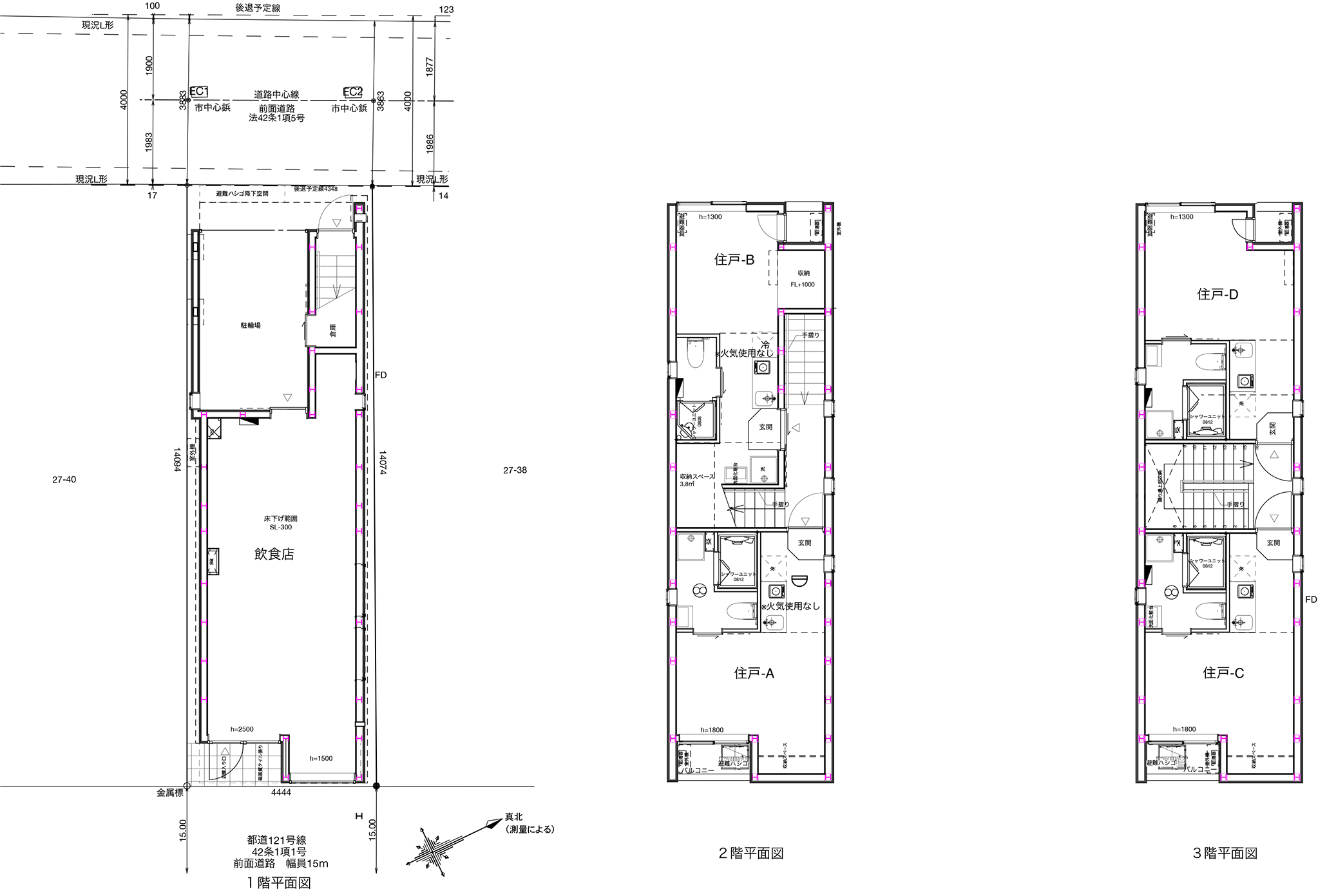
| Comment | 武蔵野市の三鷹通りに面する、複合ビルの計画です。 1階は飲食店舗を想定、2.3階は水廻りの充実したワンルームの計画となっています。外観はシャープで町並みに溶け込むような色使いと仕上げを選定しています。狭小地であるため、構造計画は鉄骨造で柱はH鋼を使うことにより、隅柱の出っ張りを無くし敷地を有効活用できるような計画となっています。 |













